Bought with Susan Perez
$160,000
$160,000
For more information regarding the value of a property, please contact us for a free consultation.
7941 Church ST Highland, CA 92346
0.29 Acres Lot
Key Details
Sold Price $160,000
Property Type Vacant Land
Sub Type Other Residential Land
Listing Status Sold
Purchase Type For Sale
MLS Listing ID CRCV25200004
Lot Size 0.294 Acres
Property Sub-Type Other Residential Land
Property Description
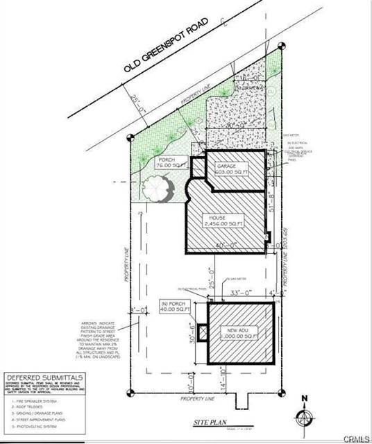
Seller have the plans in hand. We are pleased to present a vacant flat land strategically located in a desirable area of East Highland.The land is not in flood zone and raised foundation is not required. You can have one house and an ADU It offers tons of opportunities for developers/builders. This is a corner lot surrounded by single family houses and is conveniently located within few steps from a shopping center, and walking distance to Beattie Middle School & Arroyo Verde Elementary School. Build your dream tailored home and much much more!
Location
State CA
County San Bernardino
Area 699 - Not Defined
Zoning D0,PRKG,LL,TNS,PRK,LV,WLK
Exterior
Utilities Available Electricity - On Site
View Hills, Local/Neighborhood, City Lights
Building
Lot Description Grade - Level
Water District - Public
Others
Special Listing Condition Not Applicable
Read Less
Want to know what your home might be worth? Contact us for a FREE valuation!

Our team is ready to help you sell your home for the highest possible price ASAP

© 2025 MLSListings Inc. All rights reserved.






