Bought with Cassidy McIntire • Christie's International Real Estate Sereno
$1,150,000
$949,000
21.2%For more information regarding the value of a property, please contact us for a free consultation.
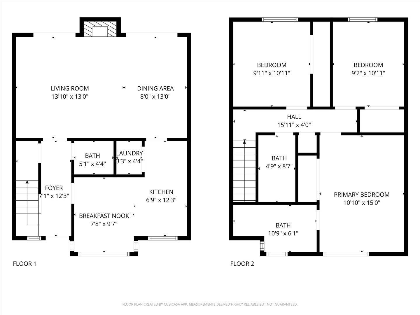
435 Alberto WAY 17 Los Gatos, CA 95032
3 Beds
2.5 Baths
1,448 SqFt
Key Details
Sold Price $1,150,000
Property Type Condo
Sub Type Condominium
Listing Status Sold
Purchase Type For Sale
Square Footage 1,448 sqft
Price per Sqft $794
MLS Listing ID ML82026211
Bedrooms 3
Full Baths 2
Half Baths 1
HOA Fees $721/mo
Year Built 1979
Property Sub-Type Condominium
Property Description
Beautiful, Los Gatos Townhome Rare 3 bedroom unit, renovated and ready for you to move in and enjoy! Best schools of Los Gatos! Walking distance to Vasona Park Creek Trails, Downtown and Restaurants. There is private outdoor patio, eat in kitchen area, Central AC and Heating, Washer & Dryer,
Location
State CA
County Santa Clara
Area Los Gatos/Monte Sereno
Building/Complex Name Las Casitas IV HOA
Zoning CH
Rooms
Family Room No Family Room
Dining Room Dining Area in Living Room
Interior
Heating Central Forced Air
Cooling Central AC
Fireplaces Type Wood Burning
Laundry Electricity Hookup (220V), Inside
Exterior
Parking Features Carport
Utilities Available Public Utilities
Roof Type Composition
Building
Story 2
Foundation Concrete Slab
Sewer Sewer - Public
Water Public
Others
Special Listing Condition Not Applicable
Read Less
Want to know what your home might be worth? Contact us for a FREE valuation!

Our team is ready to help you sell your home for the highest possible price ASAP

© 2025 MLSListings Inc. All rights reserved.






